Budapest XI. kerület


115.000.000 Ft
ID
1057

Leírás

LUXUS PANORÁMÁJÚ eladó 1163 m2 telek, régi családi házzal Budapest, 11. kerületi Sashegy egyik legszebb helyén!

Elépíthetetlen körpanorámájú D-i tájolású jó levegőjű 23 fokos lejtésű 1163 m2 nagyságú telek eladó 25 %-os beépíthetőséggel a Sashegyi Természetvédelmi területtel határos csendes zsákutcában 10 percre a Belvárostól, maximum 5 lakásos "penthouse" jellegű társasház teraszos kialakítással eladó.
Vázlattervek 4 nagyméretű lakás + gépkocsi beállókkal vagy 3 nagyméretű lakás saját garázzsal és lift megközelítéssel mellékelve.

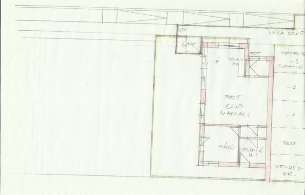
A telken jelenleg egy 1971-ben épült felújítandó 2 lakásos (2 x 72=144 m2) 2 szintes családi ház áll pincével (25 m2) és garázzsal (15 m2), amely bontható nagyobb beruházás esetén.

Ritka alkalom, ilyen extra panorámás telekhez, házhoz jutni, ezért jöjjön és nézze meg! Tömegközlekedés:

Busz
Infrastruktúra 500m-en belül:
Élelmiszerbolt, Játszótér, Zöld park

Tulajdonságok

Település:
Budapest XI. kerület
Tranzakció típusa:
Eladó
Ingatlan típusa:
Ház / Családi ház
Alapterület:
144 m2
Szobaszám:
4
Komfort:
Összkomfortos
Szintek száma az épületben:
2 szintes
Fűtés:
Gáz - cirkó
Parkolás benne van az árban:
IGEN

Kapcsolat

LUXUSINGATLAN ORG

Kollégánk elérhetőségei

LUXUSINGATLAN ORG

+36 (20) 235 0250

uzenetkuldes@proton.me

Üzenetküldés


Elfogadom az Adatvédelmi Szabályzatot

Ide kattintva elolvashatod az Adatvédelmi Szabályzatot